Hệ thống mua sắm Bếp Linh Hỗ trợ: cuonggoviet@gmail.com Tư vấn: 0905666396
Thông báo của tôi0

CỬA TRƯỢT GIẤU CÁNH HAWA CONCEPTA 25/30/40/50

33.000.000₫
Còn hàng
Mô tả đang cập nhật
alt

CỬA TRƯỢT GIẤU CÁNH HAWA CONCEPTA 25/30/40/50

Tên: cửa trượt giấu cánh Hawa concepta
Mã Hafele: 408.30.015
Xuất Xứ:  Đức

ĐẶC TÍNH CỦA CỬA TRƯỢT GIẤU CÁNH HAWA CONCEPTA 25/30/40/50

Cửa trượt giấu cánh Hawa concepta dùng lắp tủ trùm ngoài.

+ Ứng dụng: Lắp đặt cho cửa giấu cánh 1 cánh cửa

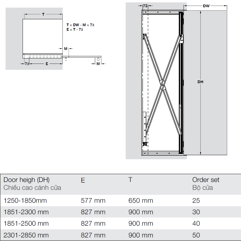
+ Trọng lượng cánh tối đa: 25, 30, 40, 50 kg

+ Chiều rộng cánh tủ tối đa: 300-900 mm

+ Chiều cao cánh tủ tối đa: 1250–-2850 mm

+ Độ dày cánh tủ 19-30 mm

+ Ray dẫn hình chữ U sâu âm vào tường

TRỘN BỘ PHỤ KIỆN CỬA TRƯỢT GIẤU CÁNH HAWA CONCEPTA 25/30/40/50

+ Bộ phụ kiện cửa trượt giấu cánh HAWA CONCEPTA 25: 408.30.015

+ Bộ phụ kiện cửa trượt giấu cánh HAWA CONCEPTA 30: 408.30.016

+ Bộ phụ kiện cửa trượt giấu cánh HAWA CONCEPTA 40: 408.30.017

+ Bộ phụ kiện cửa trượt giấu cánh HAWA CONCEPTA 50: 408.30.018

+ Vui lòng đặt thêm thanh kết nối cho 1 bên cánh: 408.30.243/408.30.092

+ Vui lòng đặt thêm thanh kết nối phía trên nóc tủ cho 2 cánh cửa khi xếp, có thể điều chỉnh: 408.30.093/408.30.094

+ Vui lòng đặt thêm thanh kết nối cho 2 cánh cửa khi xếp, cố định phía dưới: 408.30.095

Nội dung tùy chỉnh viết ở đây